€
EUR
Who are we
Properties
Want to sell
News
Contacts
More
Who are we
Properties
Want to sell
News
Contacts
0
0
Stand
Leiria, Caldas da Rainha
Back
\
Stand - Leiria, Caldas da Rainha
Share Property
Facebook
X
Pinterest
WhatsApp
Copy link
Link copiado
Print sheet
Send property to a friend
Insert a name
Insert an email
Enter a valid email address
Insert a name
Insert an email
Enter a valid email address
I have read and agree to the terms and conditions set forth.
Know more »
To finish this operation you should read and agree with our conditions.
Required fields *
Send
Photos
Seguir imóvel
Seguir imóvel
Receba um alerta quando existir uma Baixa de Preço
Name
Insira o seu Nome
E-mail
Enter your email
Enter a valid email address
Li e aceito a
Privacy Policy
To finish this operation you should read and agree with our conditions.
Insert the code from the image
Code
Send
Stand, Leiria, Caldas da Rainha
480 000 €
Ref:
OSB0433
423,3 m²
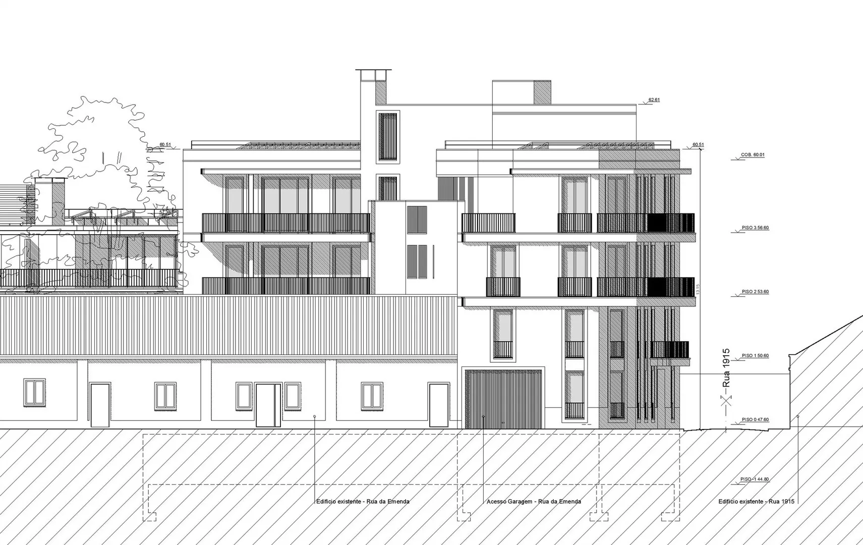
An outstanding opportunity to invest in an urban plot with an approved project for the construction of a 4-story residential building, including underground parking. The project comprises 10 apartments with varied layouts, ideal for different family profiles and investor strategies.
Total plot area: 422 m²
Gross construction area: 1,820 m² (including residential units and garage)
Planned apartment types:
1 x T1 (1-bedroom)
3 x T2 (2-bedroom)
3 x T3 (3-bedroom)
1 x T4 (4-bedroom)
2 x T7 (7-bedroom)
Underground garage area: 413 m²
The two T7 apartments can be reconfigured into:
2 x T2
2 x T3
This flexibility enhances the diversity of the offering and increases the liquidity of the units.
If you´re looking for a solid investment with guaranteed returns in the real estate sector, this project is the right choice. With an approved and ready-to-launch plan, versatile apartment layouts, and a prime urban location, this property offers strong potential for appreciation and profitability.
Interested in this property?
Date
Time
Name
Insert a name
E-mail
Insert an email
Enter a valid email address
Contact
Enter your phone contact
Message
I request more information, without any commitment, about the property OSB0433
I have read and agree to the terms and conditions set forth.
Privacy Policy
To finish this operation you should read and agree with our conditions.
Code
Insert the code shown in the image.
Send
Property Type
Stand
Typology
0 Bedrooms
Objective
Sell
Condition
N/A
Price
480 000 €
Year of Construction
N/A
Country
Portugal
District
Leiria
County
Caldas da Rainha
Parish
Caldas da Rainha - Nossa Senhora do Pópulo, Coto e São Gregório
Zone
N/A
General Features
General
Rooms
Rooms
Area
Floor
Walls
Ceilings
Comments
Surroundings
Facilities
Domotic System (Home automation)
Renewable Energy
See too
Leiria, Caldas da Rainha
80 000 €
Stand
80 000 €
Stand
Leiria, Caldas da Rainha
439,22 m²
A. Land
Contactar
Leiria, Caldas da Rainha
75 000 €
Stand
75 000 €
Stand
Leiria, Caldas da Rainha
414,7 m²
A. Land
Contactar
Leiria, Caldas da Rainha
75 000 €
Stand
75 000 €
Stand
Leiria, Caldas da Rainha
403,17 m²
A. Land
Contactar
More properties +
We are available to help you
I want to be contacted
Date
Time
Name
Insert a name
E-mail
Insert an email
Enter a valid email address
Contact
Insert your contact details
Message
Li e aceito a
Privacy Policy
To finish this operation you should read and agree with our conditions.
Code
Insert the code shown in the image.
Send
O que é a pesquisa responsável
Esta pesquisa permite obter resultados mais ajustados à sua disponibilidade financeira.